카페 리버보이
깊은 숲 속 비추는 빛에서 영감을 받은 공간입니다.
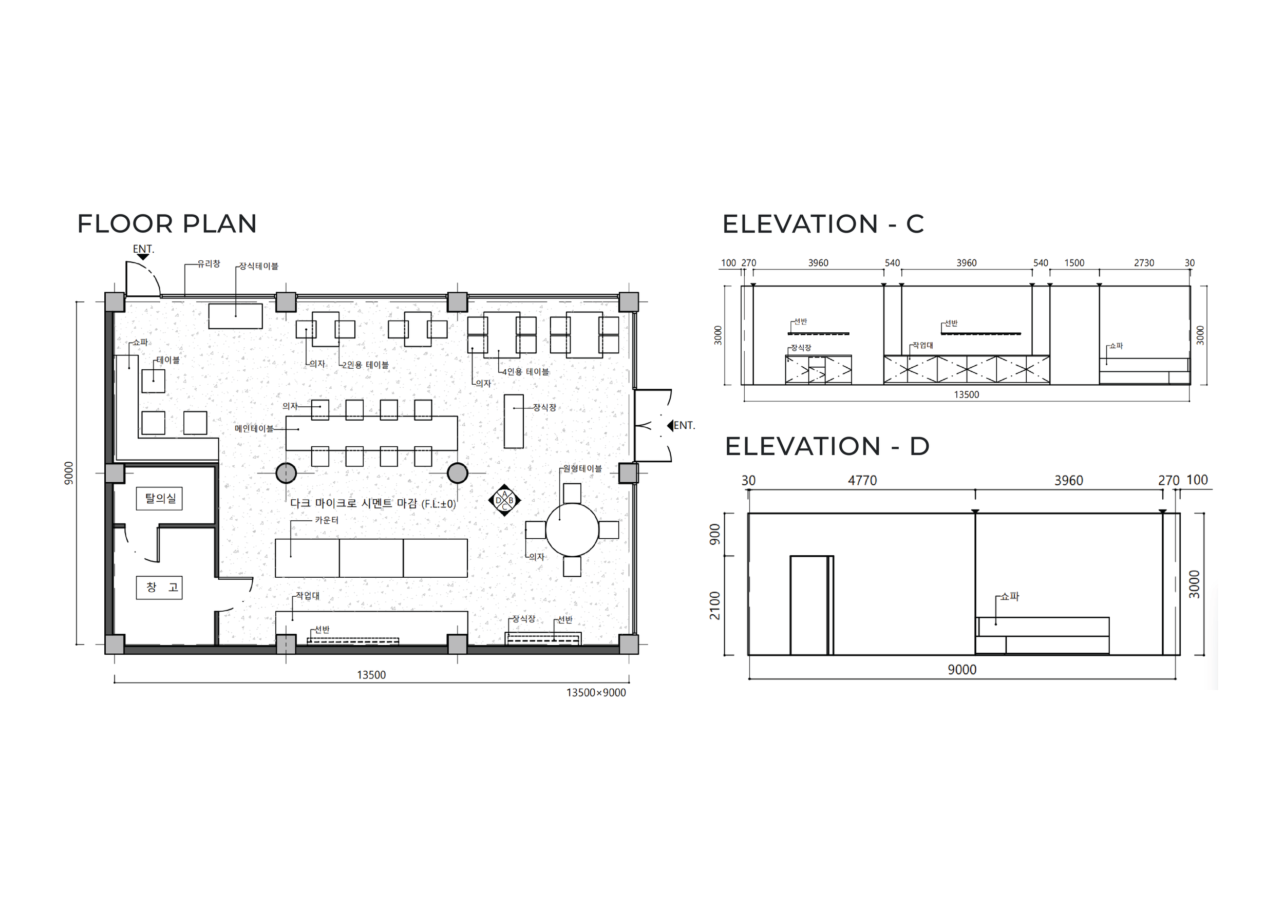
TYPE : COMMERCIAL INTERIOR CAFE
AREA : 121.5㎡
LOCATION : NEAR THE FOREST
깊은 숲 속 비추는 빛에서 영감을 받은 공간입니다.
TYPE : COMMERCIAL INTERIOR CAFE
AREA : 121.5㎡
LOCATION : NEAR THE FOREST